LA CONSTRUCTION DE CABINETS MEDICAUX
VOTTEM
2020
Construction d'un ensemble de cabinets médicaux.
Programme :
Ensemble de cabinets médicaux pluridisciplinaires (médecine générale et spécialisations).
Espaces modulables (de 15 à 30 m2).
Espace kinésithérapie au sous-sol (100 m2).
Espaces d’attente au rez et à l’étage.
Secrétariat partagé, kitchenette.
Accessibilité :
Au centre de Vottem en bordure de la place Gilles Gérard qui fait l’objet d’un plan de rénovation et de réaménagement.
Accessible par les transports en commun, disposant d’un parking privatif pour la patientèle.
Aménagé pour permettre une parfaite accessibilité aux personnes à mobilité réduite : rampe, ascenseur, respect des normes (sanitaires, portes, zone de rotation etc...).
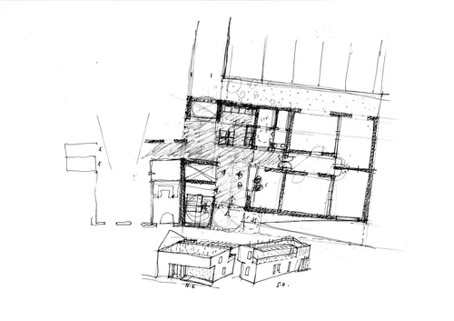
Conception et choix architecturaux :
Choix d’un matériaux unique, un bardage en zinc. La volumétrie est étudiée comme une sculpture. Le faîte de toiture est implanté sur la diagonale, il permet de créer un volume irrégulier, mis en tension. La masse du volume est creusée à l’avant. La rampe conduit vers l’entrée tout en étant protégée par le débord de l’étage. La masse est également creusée à l’arrière, en façade et en toiture. La découpe offre une terrasse et réalise une prise de lumière indirecte sur les espaces d’accueil, à l’étage mais aussi au rez car le palier d’étage est tenu en retrait (en mezzanine). Les parties en creux sont traitées comme un écorché en crépi gris clair. Les châssis sont d’un gris le plus proche possible du zinc pour conserver la lecture d’une masse.
Approche énergétique :
Isolation / VMC / Pompe à chaleur / Panneaux photovoltaïques sur le toit incliné de la maison mitoyenne.